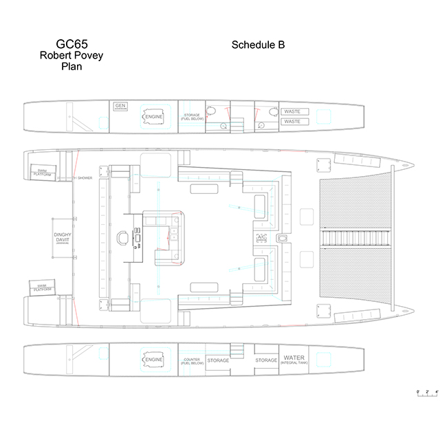
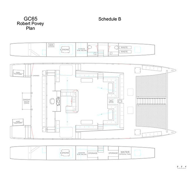
Cool Runnings
SUMMARY
Custom designed and equipped for Cool Runnings, Barbados. The design features multiple seating areas and capabilities for both day sailing and dinner excursions. Operational enhancements include an expanded bar layout for Cambro food handlers and Mahogany bar top and tables. Guest amenities include a stairway to the sea forward and two swim platforms aft and a stern deck shower. An extra wide aft beam with stairs and safety rails permit guests to more closely experience catamaran sailing.
FOR INFORMATION PLEASE CONTACT RICH DIFEDE

