Kai Kō
SUMMARY
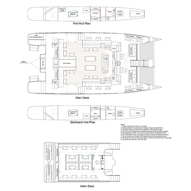
Custom designed and equipped for PACWHALE for Lahaina, Maui. The design features a double deck layout with capabilities for both day sailing and food service. Food service accommodations include a 48” propane grill and food prep area on the aft deck, a large bar area with drawer refrigeration, ice bins etc., a two unit walk thru buffet, 38 two person tables (12 removeable, 26 fixed). Day sailing amenities included an articulating bow swim ladder, two platforms and a water slide.
FOR INFORMATION PLEASE CONTACT RICH DIFEDE

