Konau Lani
SUMMARY
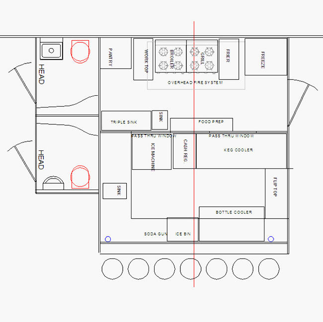
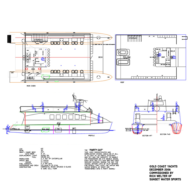
Custom designed and equipped for Sunset Sailing Key west. The design features a double deck layout with a 180 sq foot bar and food service area A water slide and several swim ladders add to the fun
FOR INFORMATION PLEASE CONTACT RICH DIFEDE

